Tudor Revival architecture is one of those home styles that feels familiar even if you don’t know the name. Many Tudor homes also have an “old-world” feel, with details that hint at English cottages and manor houses from centuries ago.
In the United States, the style became especially common in the early twentieth century and still shows up in many established neighborhoods.
What makes it interesting is the mix of historic appearance and modern-era building methods. The look comes from Tudor-period England, but the American version was adapted for newer materials, updated floor plans, and everyday comfort.
Recognizing Tudor Revival becomes easier when you know what to look for: the shape of the roof, the emphasis on chimneys, the division of windows, and the mixing of wall materials for contrast.
Those elements work together to create a grounded, storybook-like presence that has lasted for generations.
What Is Tudor Revival Architecture?
Tudor Revival architecture is an American home style that pulls visual inspiration from late medieval and early Renaissance England, especially the Tudor period (1485–1603). In the U.S., it began appearing in the late 1800s and became widely popular from about 1910 through 1940.
Many houses built during this era were designed to feel established and traditional, even when they were brand new.
A key difference separates Tudor Revival from true Tudor construction. In England, exposed timber framing was structural.
In most Tudor Revival houses, the timber patterns are decorative, applied over stucco or brick to create a similar look using modern building methods.
Historical Development And Influences
The Tudor Revival did not copy any single English building type. Instead, it borrowed recognizable features and blended them into a style suited to American neighborhoods.
Some homes leaned more formal and mansion-like, while others were compact “Tudor cottages” built for growing suburbs.
The style is often grouped into two broad waves: early, high-end examples in the late 1800s, and the much larger wave of suburban construction between 1910 and 1940.
Origins In England

During the Tudor era, many English buildings used timber framing filled with materials like wattle and daub, made from woven sticks and mud plaster.
The exposed timbers weren’t added for decoration. They helped form the building’s structure. Other well-known features were shaped by practical needs.
Steep roofs helped shed water, tall chimneys supported multiple fireplaces for heating, and windows were divided into small panes because large glass sheets were expensive and scarce.
American Adaptation

When Americans revived the Tudor look, they used newer construction systems. Brick, masonry, and modern framing were more common, so the exposed timbers became surface decoration rather than the main structure.
At the same time, these houses were designed for modern life. Central heating, electricity, indoor plumbing, and updated kitchens were part of the plan, even when the exterior suggested a much older building tradition.
Key Architectural Features
Tudor Revival homes are easiest to recognize by the way several exterior elements work together.
Even if one feature is subtle, the combined effect of roof shape, chimney design, window patterning, and mixed wall materials usually creates a clear Tudor identity.
The features below are the ones most closely associated with the style in American neighborhoods.
1. Half-Timbering Patterns

Half-timbering is the dark wood patterning seen against light stucco or masonry. In Tudor Revival homes, it is usually decorative rather than structural.
The boards are arranged to create geometric layouts that visually “frame” sections of the wall.
Many homes place half-timbering on upper stories and gable ends. Some use it heavily across the front facade, while others use only a small amount as an accent.
2. Roof Shapes And Gables

Steeply pitched roofs are one of the strongest Tudor signals. The pitch creates dramatic angles and shadow lines, often resulting in an irregular roofline with multiple gables.
Cross-gabled layouts are common, where gable sections meet at right angles. Roofing materials vary, but slate is a classic choice, and many homes use shingles designed to resemble slate.
3. Chimneys

Tudor Revival chimneys tend to be tall, prominent, and visually heavy compared with many other American house styles.
Brick and stone are common materials, and decorative details often appear near the top. Some chimneys include patterned brickwork, stone caps, or grouped flues.
Even homes with fewer functional fireplaces sometimes kept oversized chimneys because they reinforce the historic character.
4. Windows And Doors

Windows often appear in groups and are divided into smaller panes. Casement windows are especially common, swinging outward, but many homes also use double-hung windows with divided lights.
Bay and oriel windows add dimension by projecting outward from the wall. Entry doors are typically substantial wooden doors, sometimes with iron hardware, and arched doorways can enhance the medieval-inspired feel.
5. Wall Materials And Surface Texture

Tudor Revival exteriors rarely rely on a single material. Many homes combine stucco, brick, and stone to create contrast and depth. The effect is textured and layered rather than smooth and uniform.
A common approach is a heavier material on the lower level, such as brick or stone, with stucco and decorative timbering above. This helps the house look grounded and visually stable.
Interior Layout And Design
The interior of a Tudor Revival home often balances tradition with comfort. While the exterior may look medieval-inspired, the interior was usually designed for early-20th-century living, with practical circulation and defined rooms for daily routines.
Certain interior details, especially woodwork and fireplaces, are strongly tied to the Tudor identity.
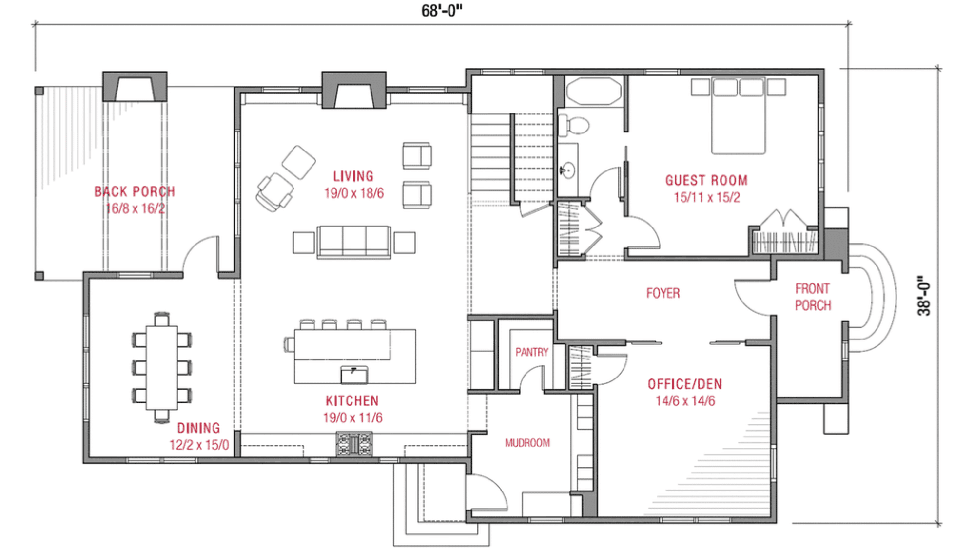
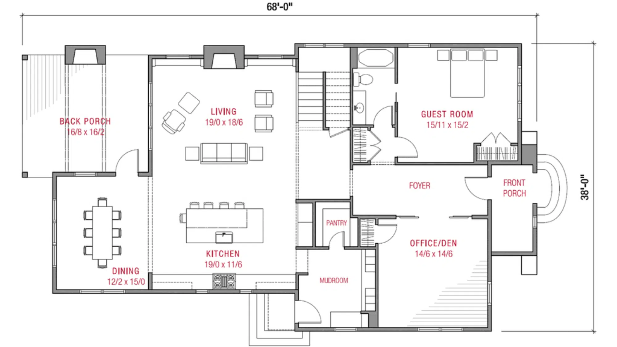
1. Floor Plans

Floor plans are often asymmetrical, with rooms arranged around a main entry hall and staircase.
Living rooms often center on a fireplace, with a separate dining room nearby and the kitchen toward the rear, including a work area and a guest room.
Compared with earlier Victorian layouts, many Tudor Revival homes reduced the number of tiny rooms while still keeping clear separation between major spaces.
2. Ceilings, Beams, And Room Shape

Main rooms sometimes have higher ceilings than the standard eight-foot height, and decorative ceiling beams are common.
These beams typically add visual warmth and a traditional look rather than serving a structural role.
Second-floor rooms may have sloped ceilings that follow the steep roof pitch. This creates cozy shapes and angles, though it can limit wall space for tall furniture.
3. Fireplaces And Built-Ins

Fireplaces are often the visual center of the living room. Surrounds may be brick or stone, and mantels are frequently detailed in wood.
In some homes, arched fireplace openings reinforce the Tudor theme. Built-ins are also common, including window seats, bookcases, and wood paneling.
These features add both character and practical storage, especially in older homes where closets were smaller.
Regional Variations in the United States
Tudor Revival homes vary across the United States, shaped by regional climate, materials, and local architectural traditions.
- Northeast and Mid-Atlantic: Homes are often larger and more formal, using locally sourced stone, steep roofs, and smaller windows suited for colder climates.
- Midwest: Brick dominates many designs, with restrained half-timbering. Many homes date to the 1920s, influenced by builder catalogs and suburban growth.
- California and the West: Homes feel more relaxed, commonly using stucco and larger windows, often blending Tudor elements with regional architectural styles.
Despite regional differences, Tudor Revival architecture maintains recognizable features, balancing historical character with local building needs nationwide.
Why Tudor Revival Still Draws Interest
Tudor Revival remains appealing because of its strong identity. Varied rooflines, bold chimneys, and mixed wall textures create a sense of individuality that can stand out in a neighborhood of simpler forms.
Many people also like the interior character. Fireplaces, beams, and built-ins can make rooms feel warm and finished without much extra decoration.
When well-maintained, the masonry and woodwork in many Tudor Revival homes can also hold up over time.
Conclusion
Tudor Revival architecture combines historic English-inspired details with American building methods from the early twentieth century.
Decorative half-timbering, steep gabled roofs, tall chimneys, multi-pane windows, and mixed exterior materials work together to create a style that is easy to recognize once you know the signs.
Not every Tudor Revival home includes every feature, but the overall composition tends to feel grounded, textured, and carefully shaped.
Paying attention to rooflines, chimneys, window layouts, and wall treatments makes it much easier to identify the style and understand why it has lasted.






